Design District Bureau D1

Design District Bureau D1

United Kingdom, 2021

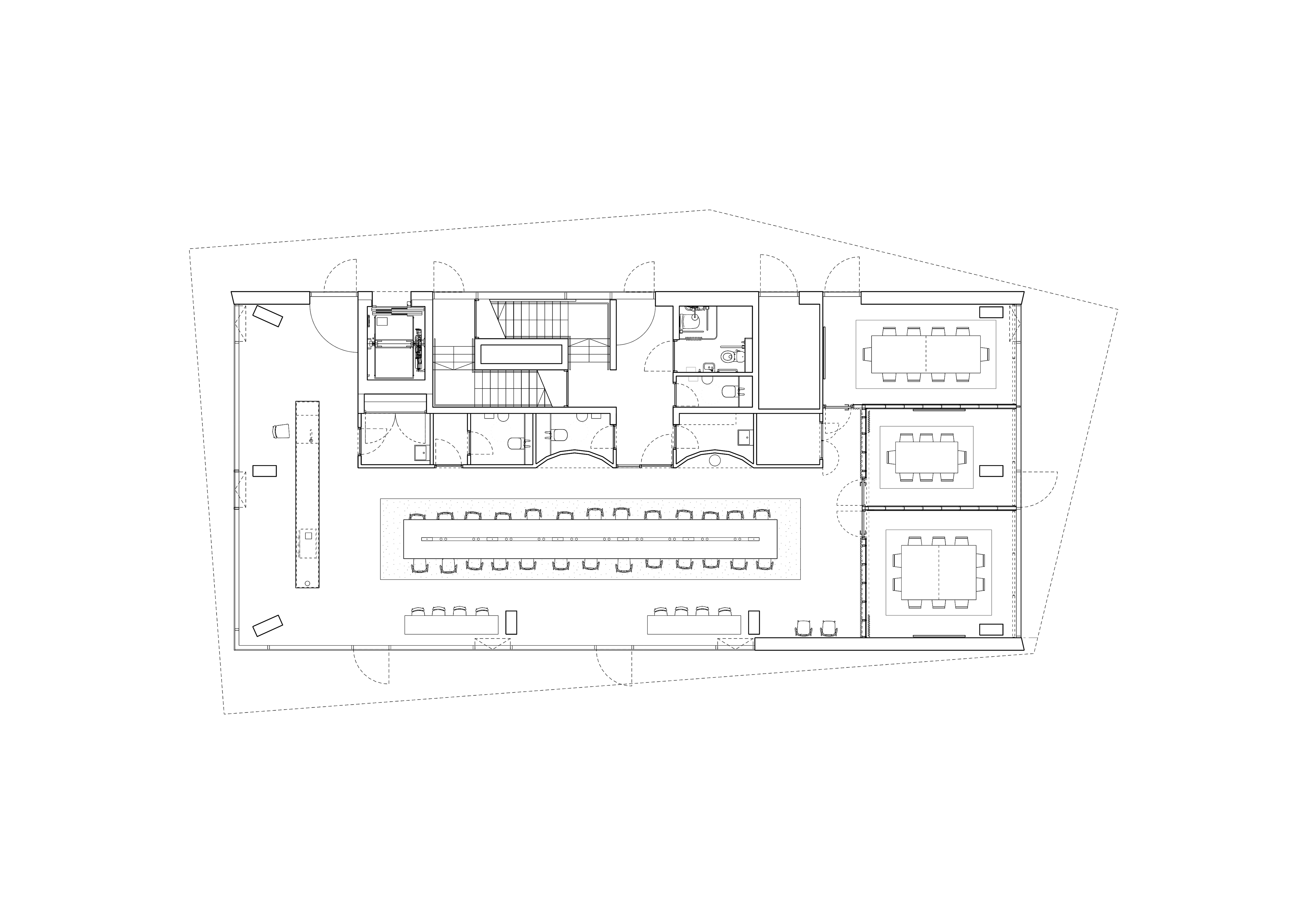
In February 2020 we won an invited competition to act as Lead Consultant to design a new Creative Workplace Centre for the Design District North Greenwich. The Design District is a permanent home for the creative industries — 16 buildings designed by eight pioneering architects, and we are designing the central co-working centre with a restaurant, forum, a range of meeting rooms, screening room and flexible works spaces and studios. The concept is to create new ways of flexible working that rival the current co-working spaces and are aimed at a younger generation of the creative Industry and will become a central membership club within this dynamic new development in Greenwich.

Within our proposals we are creating the main restaurant for the Design District with a coffee bar and lounge areas. There are a range of different sized meeting and conference facilities. We have created new hot desking floors with central coffee bars, phone booths and Zoom-meeting rooms. There are also floors of fixed desking for permanent members with similar break out areas and we have designed all of the joinery and bespoke furniture. We have developed a new concept for flexible studios that vary in scale and can be adapted for short term tenancies. A central forum space with external planted terraces was designed for events and summer lounging. The buildings are totally passively ventilated and we have a strong sustainability focus for the design of this project.

We have set a simple palette of materials to offer a comprehensive set of interiors across both buildings. We are using materials such as recycled plastics and natural marmoleum in conjunction with everyday building products such as corrugated cement board and galvanised steel that are complimented with terrazzo stone and natural clay plasters.

Photographs: Thomas Adank