Roz Barr Architects
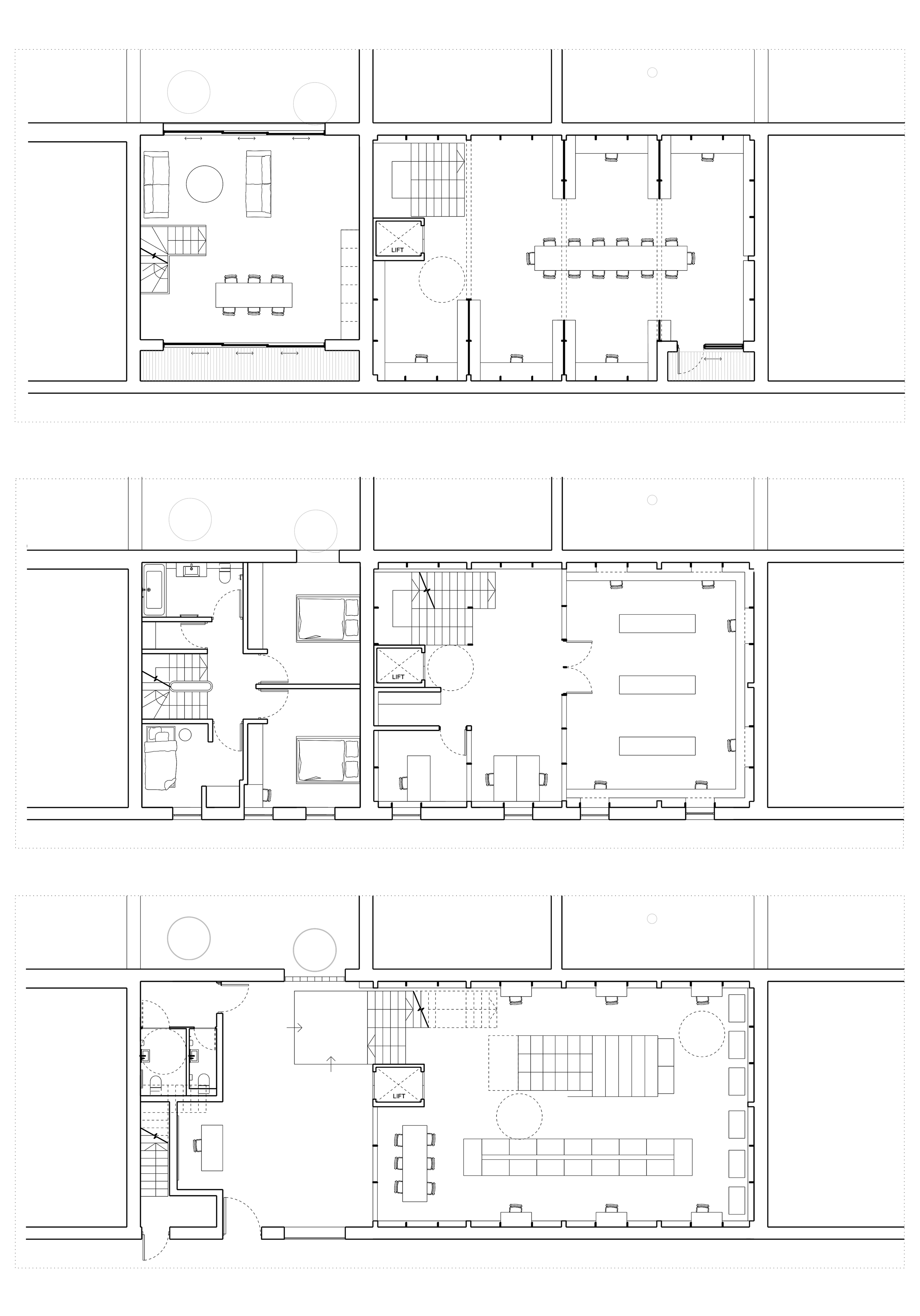
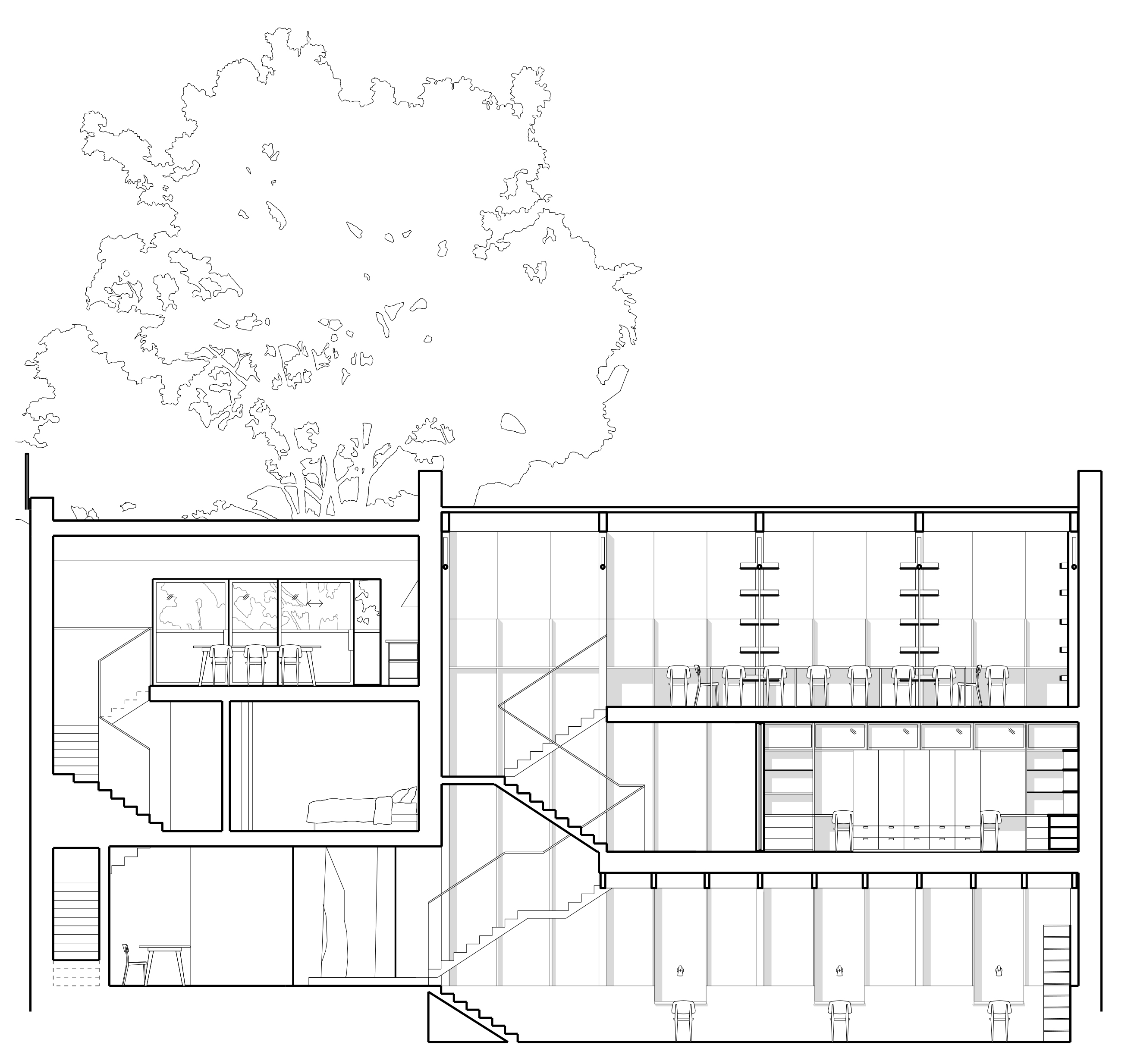
Library and archive, Bloomsbury
Toggle Menu
Projects
Selected projects
All projects
News
Practice
Profile
Publication
Gallery
Writing
Lectures
Teaching
Selected
All
Library and archive, Bloomsbury
Read more
Close
Library and archive, Bloomsbury
2022