Goodenough Club

Goodenough Club

United Kingdom, 2013–14

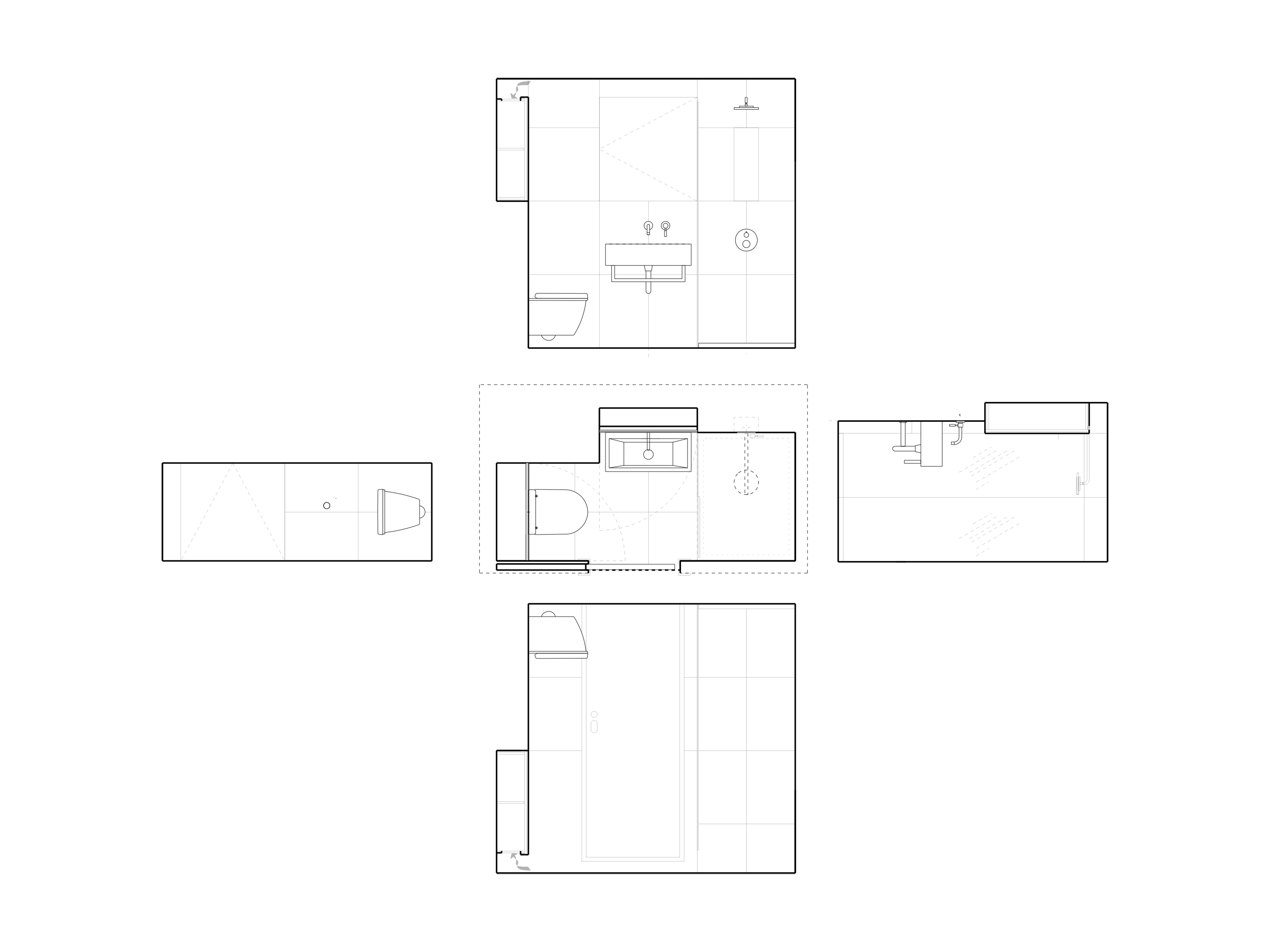
In 2013 we were successful in a competition for the refurbishment of the Goodenough Club - a 4 star hotel that is part of the post-graduate college of Goodenough College in Bloomsbury. The Club is situated within a row of 5 Georgian Grade 2* listed townhouses. Our initial brief was to redesign 65 bathrooms within the club and the common parts. The existing services of the buildings needed upgrading and we were able to offer more accommodation by rationalising the existing services and upgrading the design of the existing rooms offering a higher level of finishes that complimented and were more appropriate to the listed building. We liaised closely with the Historic Conservation Officer at Camden to ensure our detailing was respectful of the existing building fabric and period detailing.

The bathrooms were carefully detailed to offer 5 star quality and elegance with a contemporary approach to period colours and using victorian tiles. Detailing of the bathrooms was carefully executed by the contractors as we were meticulous in the setting out of the tiling in order to create a very clean and ordered space. We designed new vanity units with fine black metal framing. The sequencing of the project was incredibly complex as the Club remained open and the contractors worked through the project house by house and we were able to achieve sectional completion to ensure the College did not lose too much in revenue during the project. We visited the site weekly and due to the complexity of the sequencing of work to the listed building we often had to make decisions quickly as we uncovered some unknowns during the first phases of strip out.

The success of the project was due to our good working relationship with the contractor and their sub contractors and the project team to ensure any changes were communicated and much time was spent on the programme prior to commencing on site.

Photographs: John MacLean