Kaufmannshauser

Kaufmannshauser

Germany, 2013

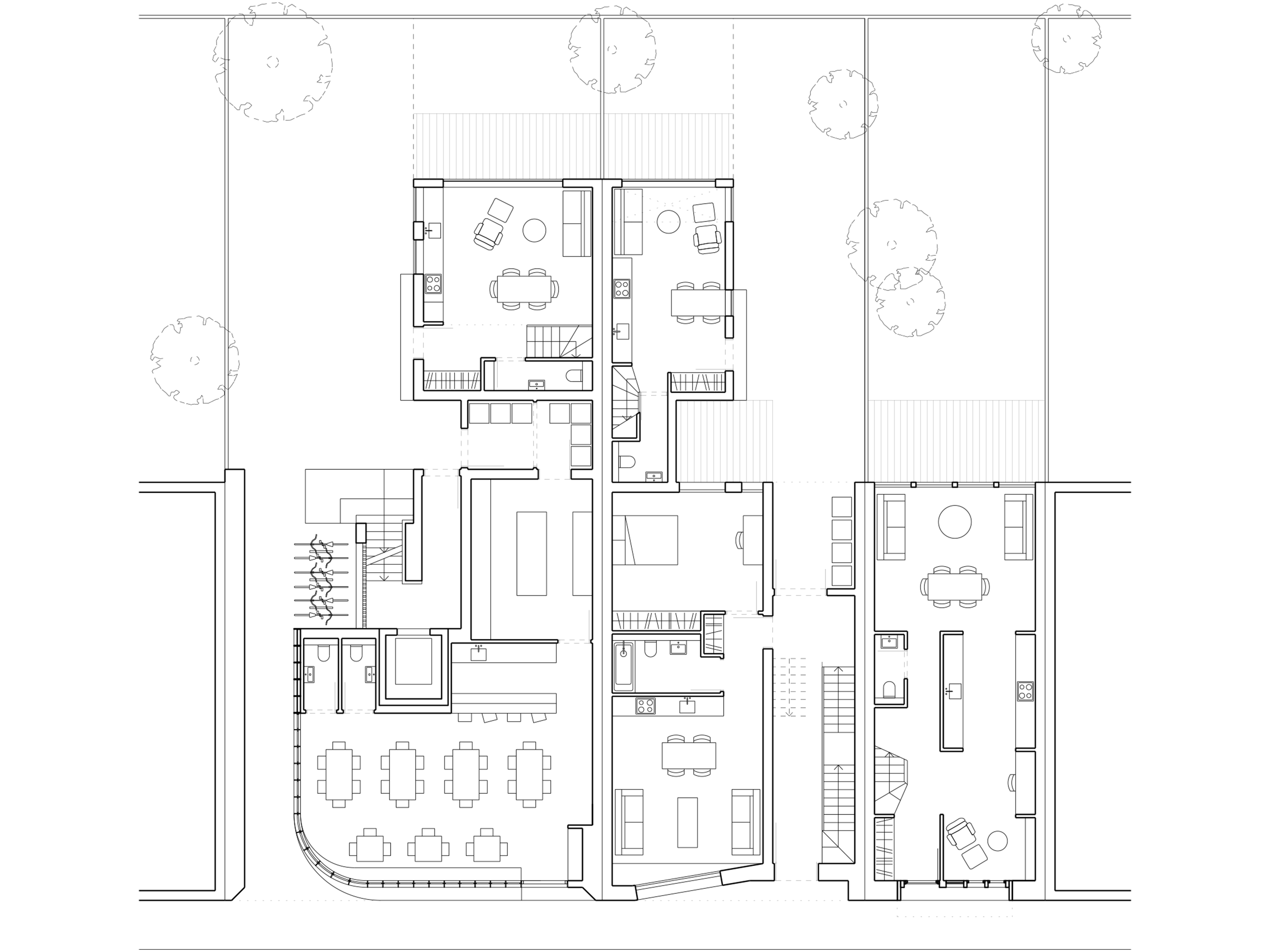
The importance of this Unesco World heritage status to the entire old city of Lubeck, establishes this site as an opportunity to explore the importance of this layered and rich historical context and how this could be re-interpreted for modern day living. Balanced with understanding the requirements of residents, developers and builders in reinventing the crafting and materiality of the housing typology and its contribution to the existing street scape and community was an interesting opportunity on how the balance of both ‘old and new’ can be harmonised. We were sensitive to how a new facade design would maintain and reinstate the integrity and authenticity for the future of this historic city.

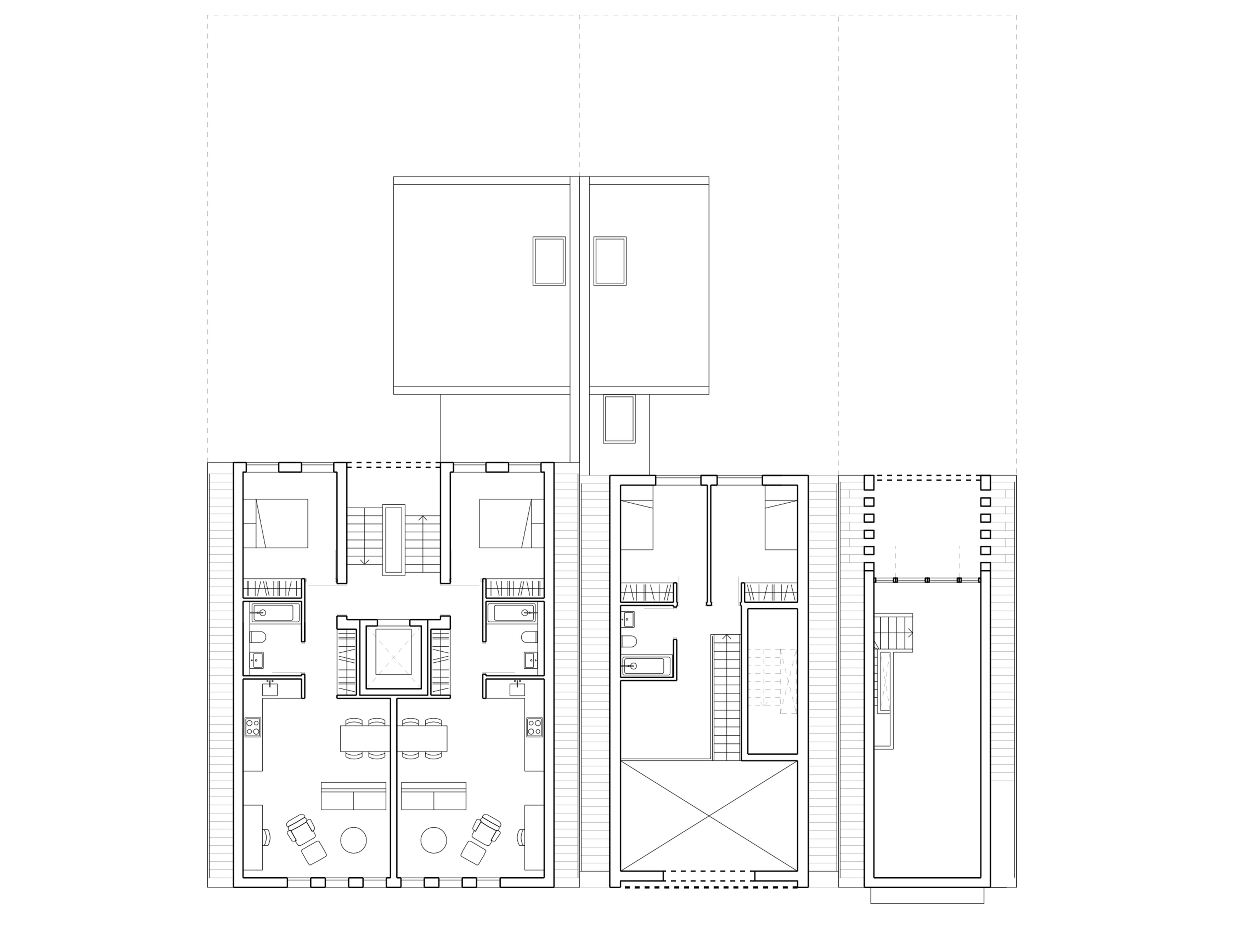
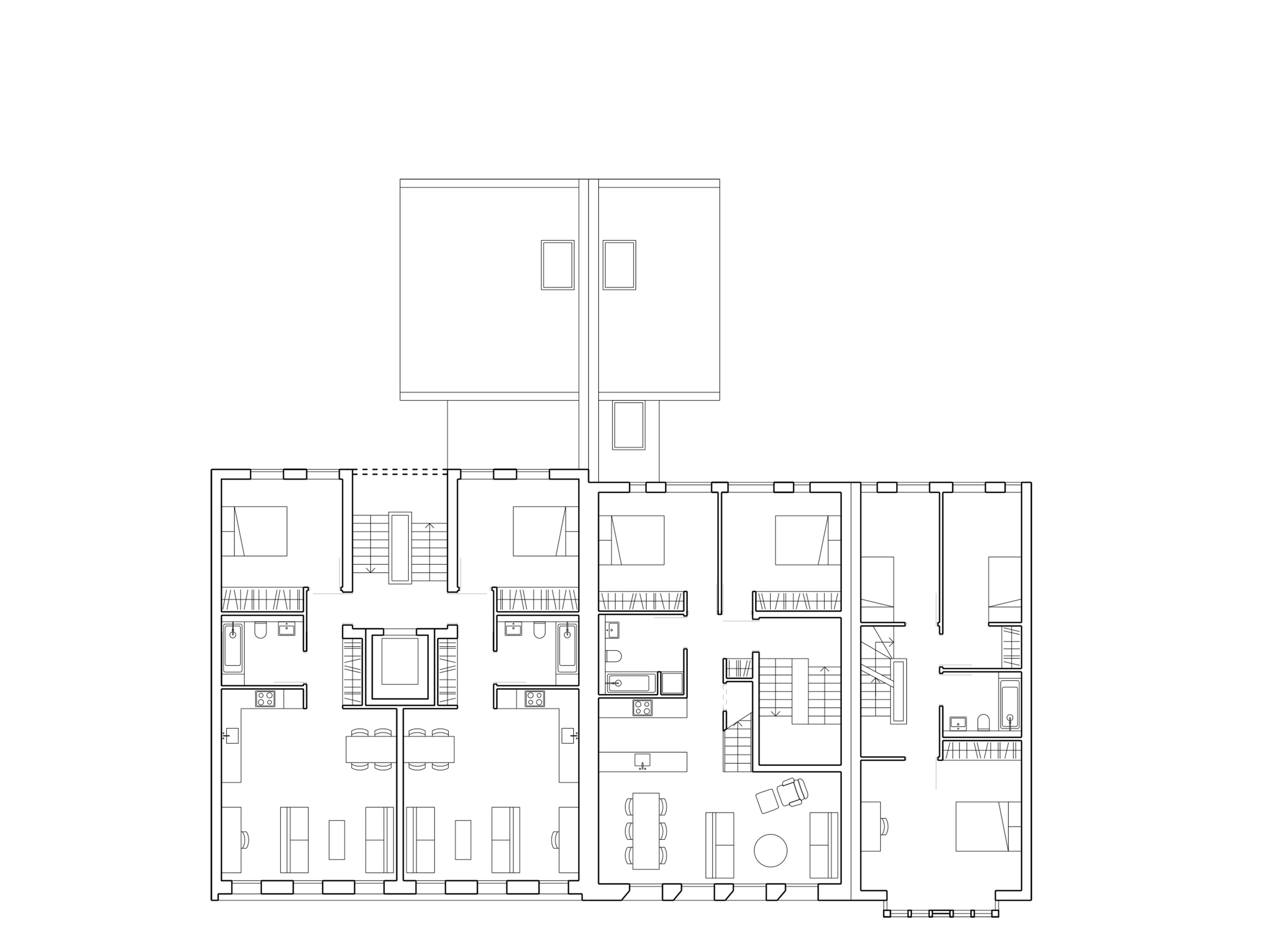
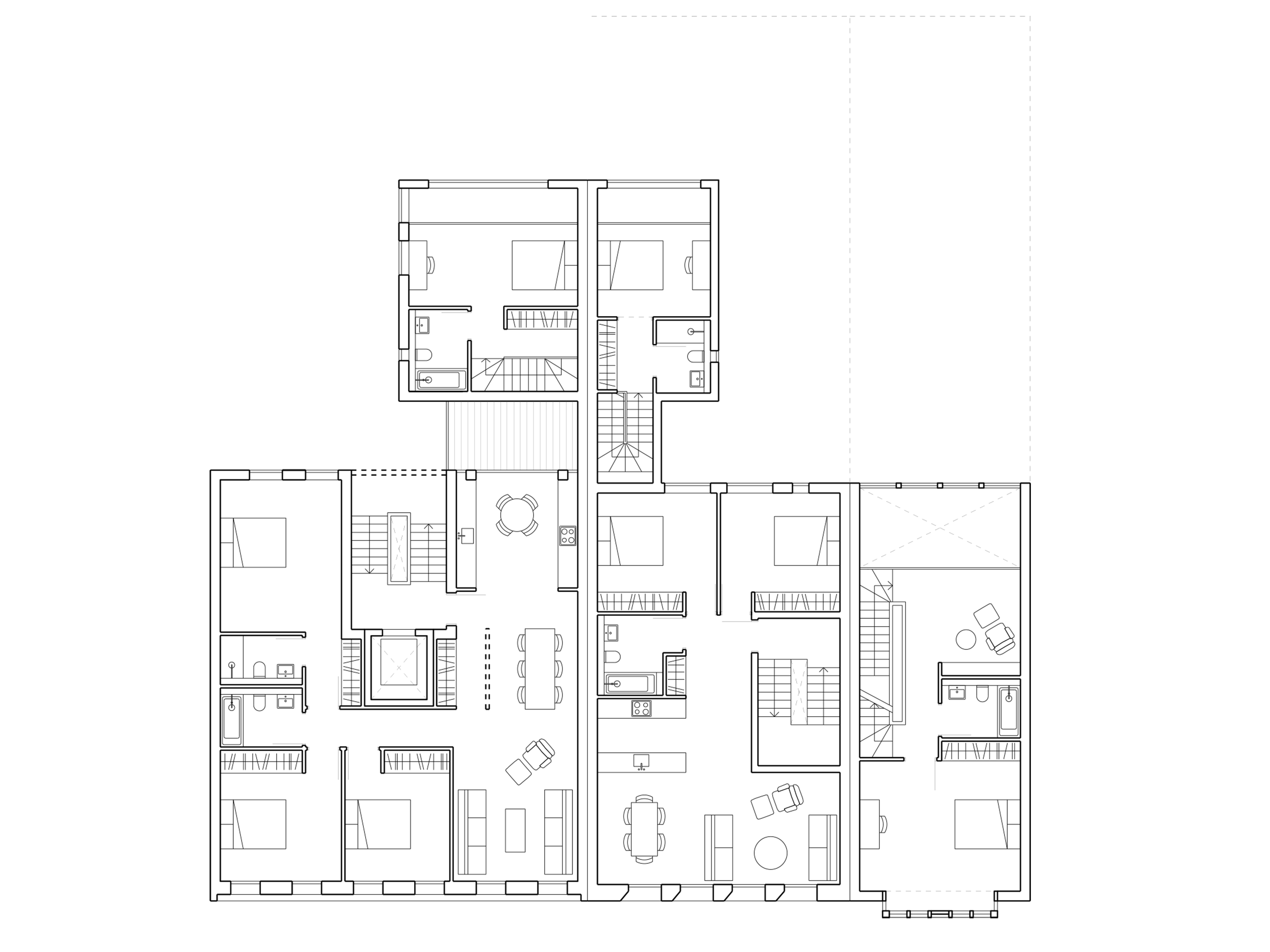
From researching and visiting the existing merchants housing and rethinking the type and mix of apartments and layouts suitable for single people, the elderly, disabled and families we could offer good spatial configurations and excellent natural light.

Influenced by the historic typology of terracota in Lubeck, we have chosen a palette of materials using the traditional brick type and how the ordering and patterning of these can acknowledge the importance of its rich heritage whilst offering a more contemporary approach to the historic streetscape. The new facades although respecting the ordering of the existing merchant housing conveys a narrative of the crafting and materiality of what defines Lubeck as unique within Northern Europe and how these new facades individually will become part of the cityscape.

Model photographer: Andrew Putler