King Fahad Academy Theatre

King Fahad Academy Theatre

United Kingdom, 2013–14

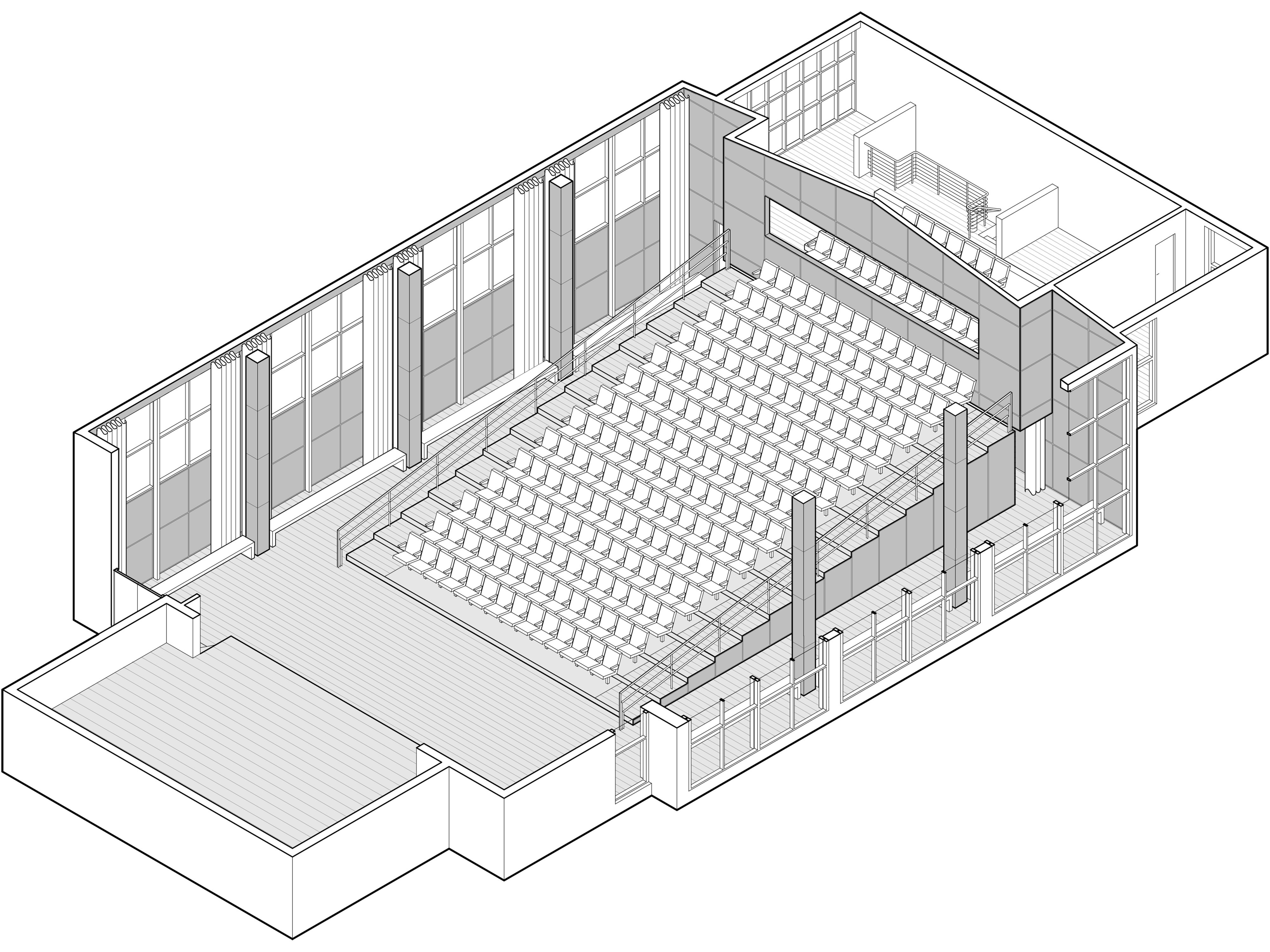
In 2013 we were commissioned to refurbish a large assembly room and ancillary spaces to create a new theatre for 250 students at this comprehensive school in West London. The initial scheme also connected a changing and rehearsal space at ground and refurbishment of the external facades of this 1960s purpose built secondary school.

The space had good existing windows to both long elevations and we were able to create an opening in the existing rear wall of the space to provide a large balcony space to the rear of the main auditorium for additional seating and a refreshment area. Black MDF panelling clad the main elevations of the space and formed a grid with the existing windows which we sprayed black. This created a more ordered and uniformed interior with a new acoustic ceiling grid and lighting. The existing beech floor was sanded and re- oiled and a grey wool carpet helped the acoustic to new auditorium seating area. The raked fixed seating offered storage underneath and was accessed from the rear of the platform.

New birch plywood benches lined the windows openings, with upgraded heating and cooling system to show how this educational and performance space could be used. The simplicity of the detailing and palette of materials was important to give this space an identity and is now the main theatre space within this large school.

Photographs: John MacLean