Kulturforum Berlin

Kulturforum Berlin

Germany, 2015

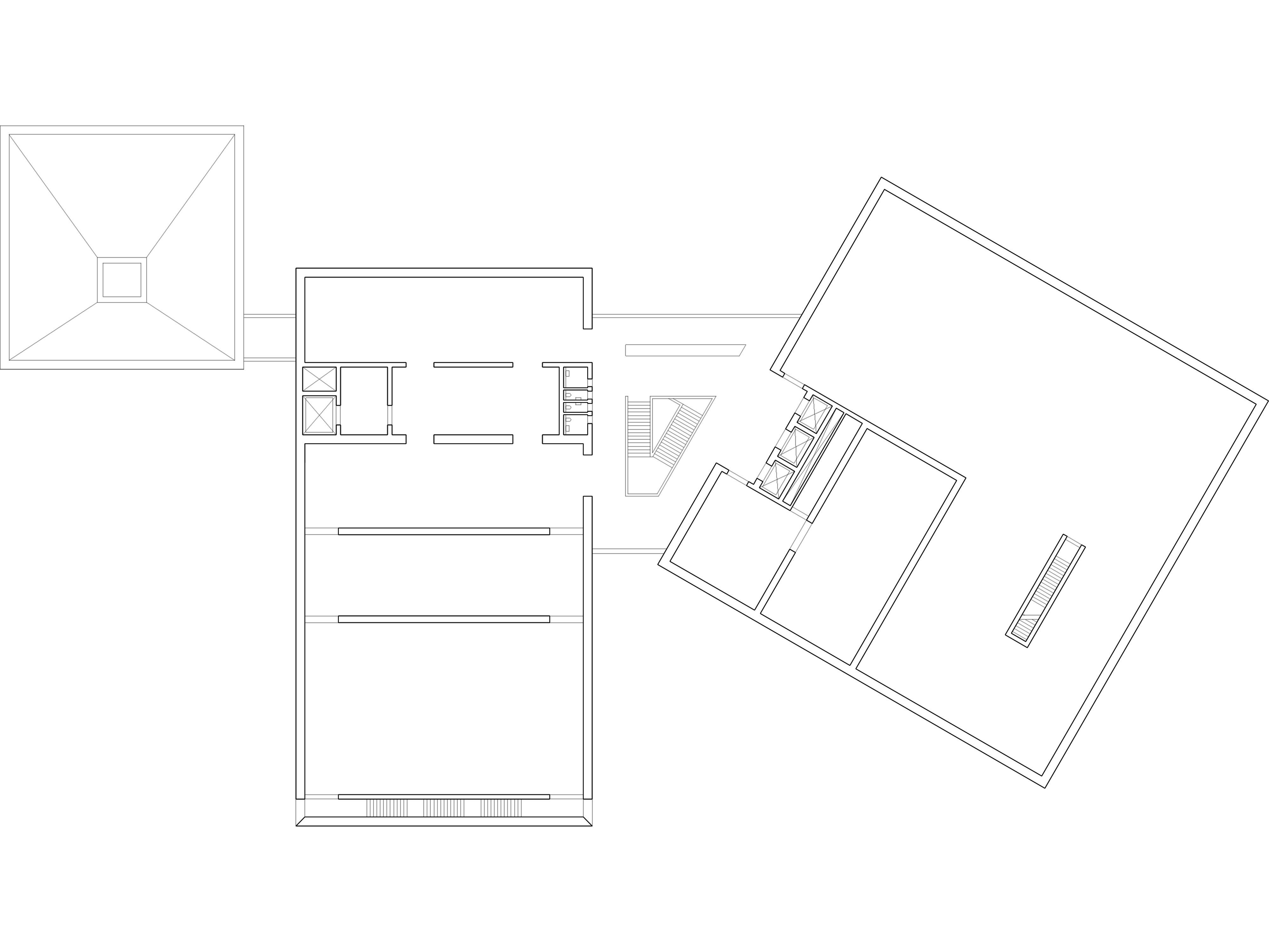
The concept for the new Museum of the 20th Century is create a new public plaza that mediates between the iconic forms of Mies van der Rohe’s Neue Nationalgalerie and the Scharoum’s Philharmonie and completes this elevation to Potsdamer Strasse. We were inspired by the notion that this new museum would unite several important collection in Berlin of the 20th Century and create this new central forum. The integration of a new Museum of the 20th Century within the Kulturforum should symbolize a strong form that creates a new urban space that also links both physically to the Neue Nationalgalerie but visually connects and frames views to the other important cultural institutions around the site.

We propose three strong forms/pavilions of varying scales that house the main collections and offer a new home for this important new collection. These forms - a tower, an urban block and a villa - address this urban context in creating a new urban form within Kulturforum. The design for this new museum and integrated landscaped identifies how the fragmented forms will define this new space. We propose a common materiality for the new museum buildings and paving surface and this would be in the same brick but with variations to the patterns and coursing to differentiate each block. This material commonality offers a crafted approach that will define this new urban space and give it a strong identity within the Kulturforum.

We have created two main levels on which these three pavilions sit – one terrace is a continuation of the podium of Neue Nationagalerie and the other lower than Potsdamer Strasse and the Philharmonie. We propose a new covered colonnade (loggia) to link these two levels along Potsdamer Strasse and form a strong edge to this busy road.