Roz Barr Architects
Ramsden Road
Toggle Menu
Projects
Selected projects
All projects
News
Practice
Profile
Publication
Gallery
Writing
Lectures
Teaching
Selected
All
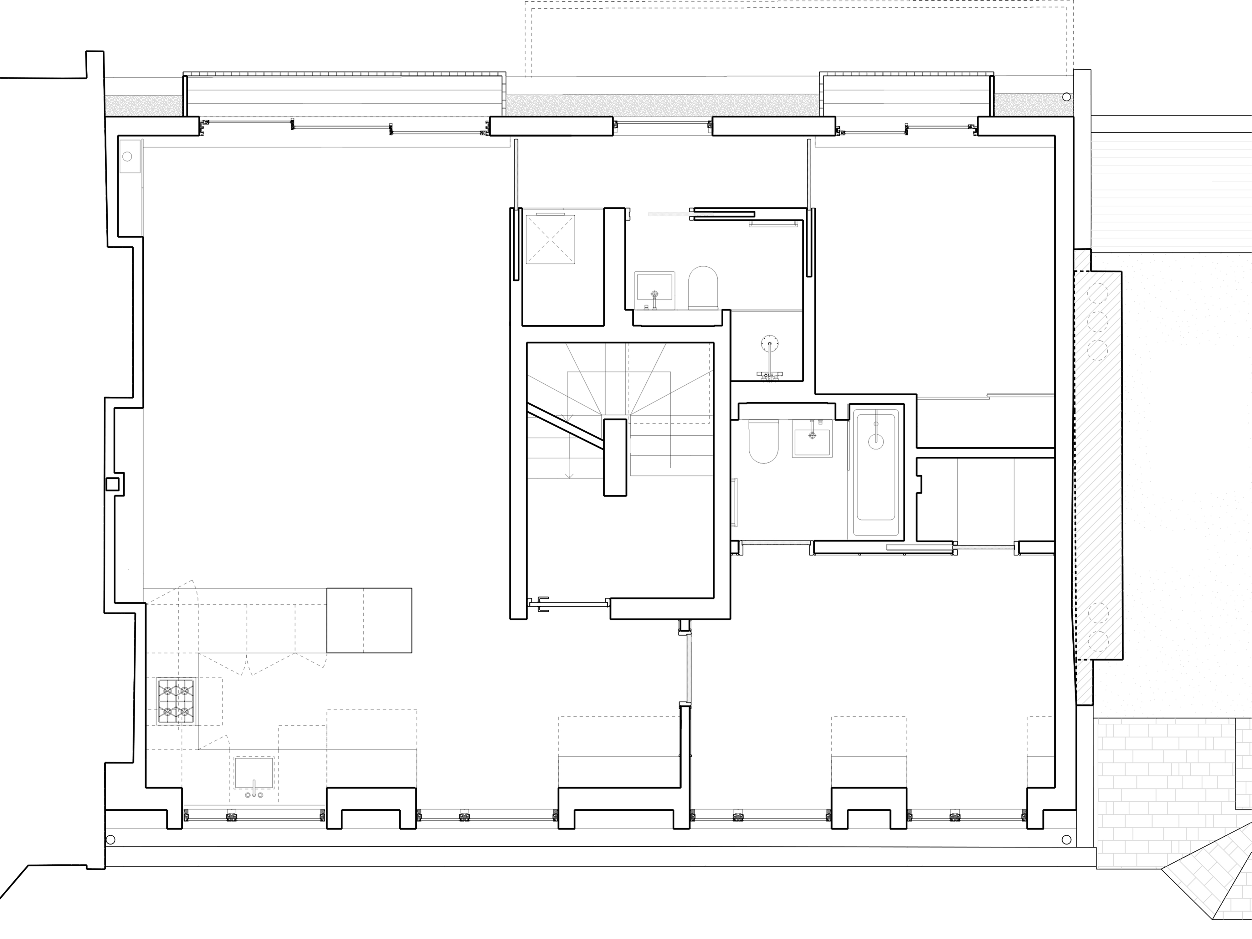
Ramsden Road
Read more
Close
Ramsden Road
United Kingdom, 2019