Roz Barr Architects
RIBA House of Architecture Competition
Toggle Menu
Projects
Selected projects
All projects
News
Practice
Profile
Publication
Gallery
Writing
Lectures
Teaching
Selected
All
RIBA House of Architecture Competition
Read more
Close
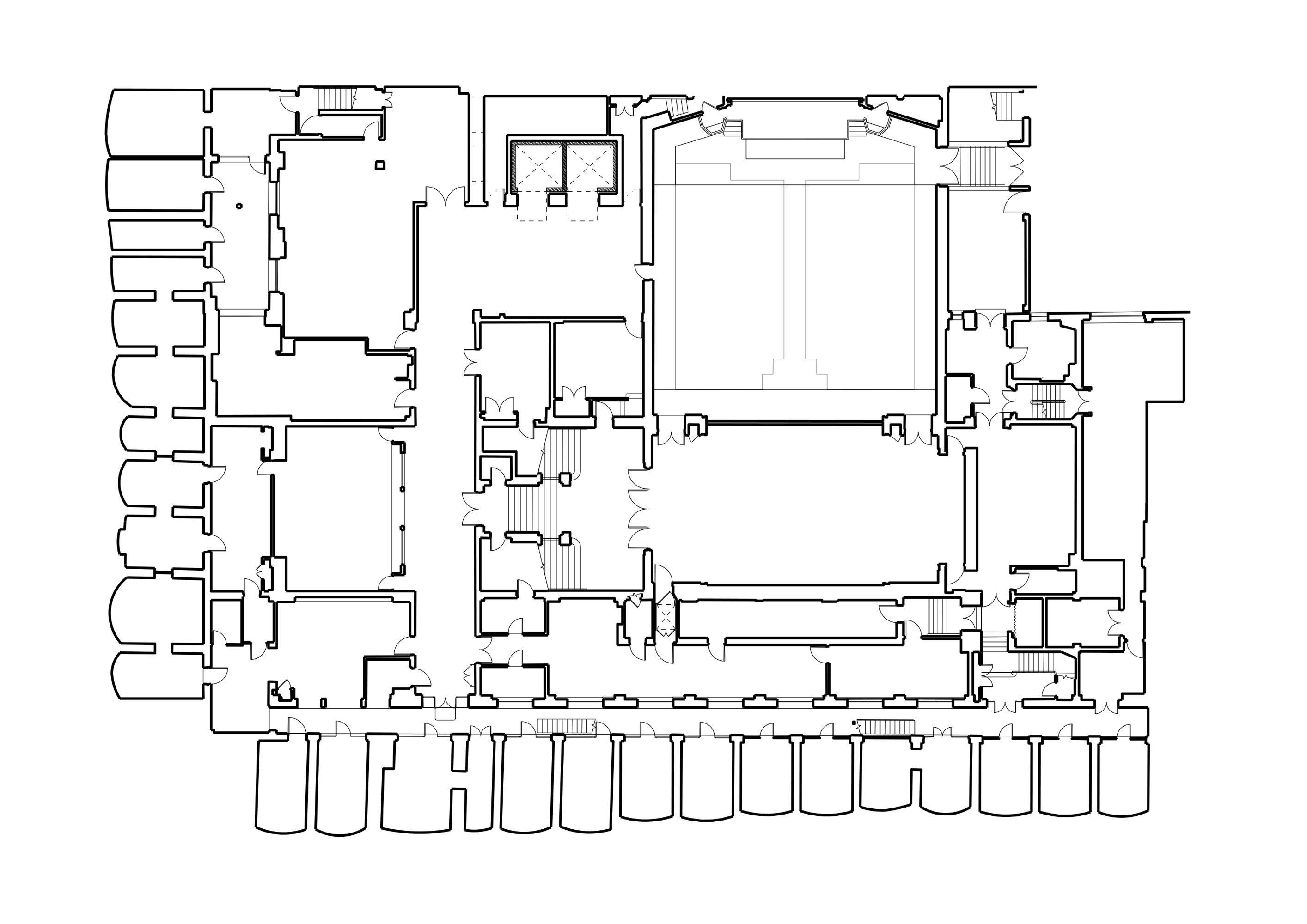
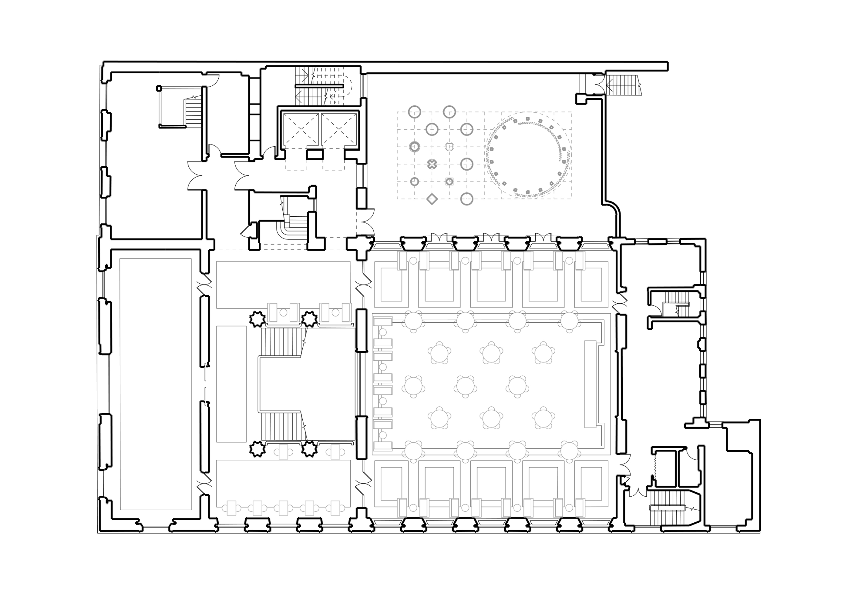
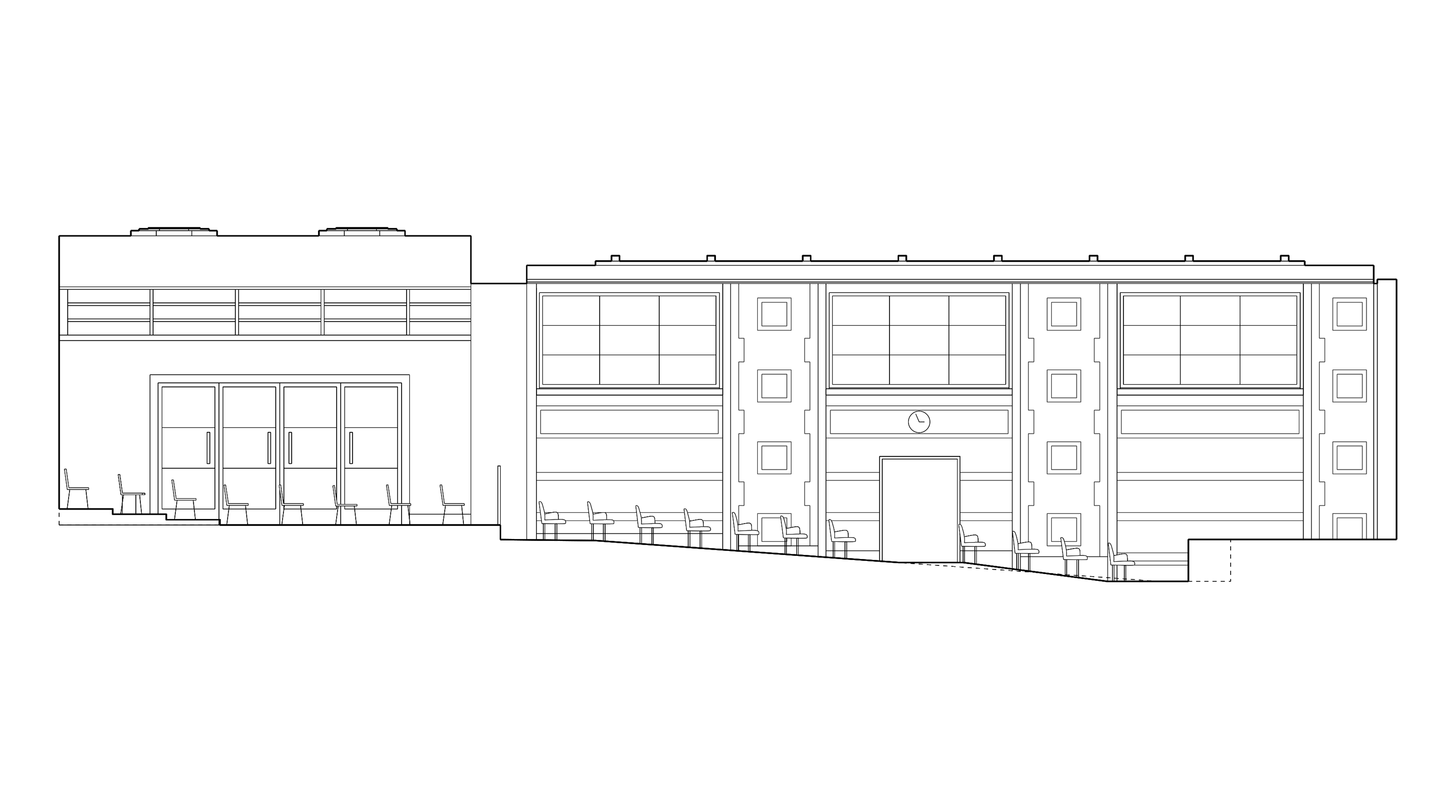
RIBA House of Architecture Competition
2022