Shaping Space – Architectural Models Revealed Exhibition

Shaping Space – Architectural Models Revealed Exhibition

United Kingdom, 2021

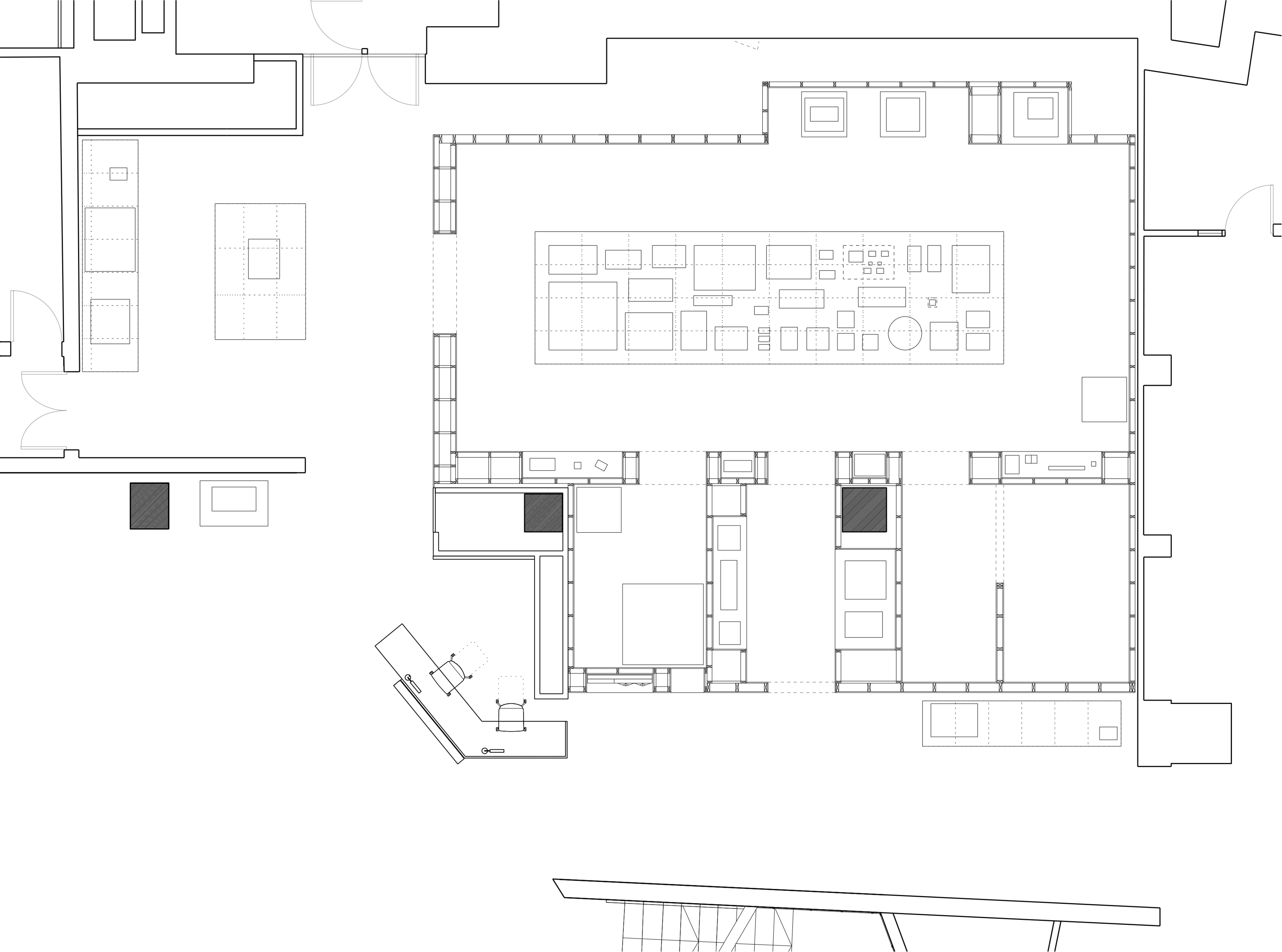
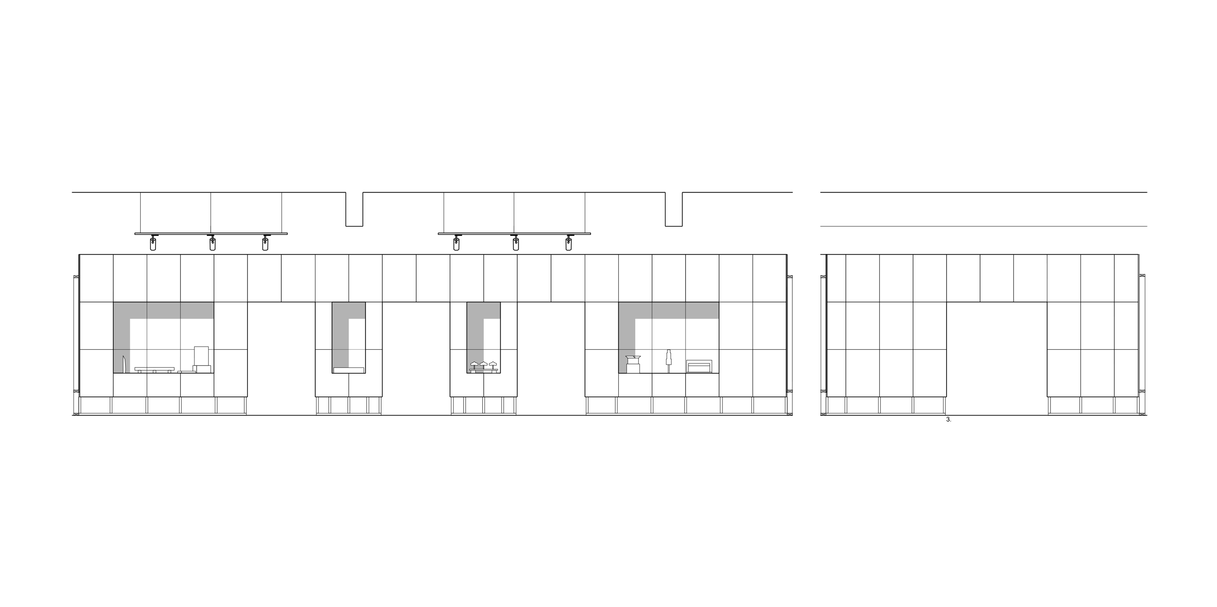
Our interest in how we shape and construct spaces informed our design ideas as we collaborated with the curators to form the narrative and consider the models that would be part of the Shaping Space exhibition.

We as a practice make models in the studio not to replicate a design idea but as tool to explore form, materiality and to conceptualise an idea. We make models to demonstrate construction, assembly, spatial configurations, and their relationship to context and content – they are a tool for exploring so many aspects of a project. The models are in constant flux, acting as a tool to formalise or materialise a first thought. So much ‘constructed’ thought goes into the act of physically making that the outcome may differ or transpose an earlier sketch, as the model realises the unimagined.

Holding this method of why we make models in our heads, we decided to construct the exhibit in a similar way to how we think through model making. Scaling up how we would make a paper and balsa wood model, timber posts form a structure clad with card to form a series of spaces. The precision of pinning and placing the card is the same process in any scale model. Here we have created a 1: 1 scale model as a vessel to contain an extraordinary collection of models of various genres and of materiality and context.

We make and think through models, and this exhibition demonstrates how this becomes a physical form in which we understand and shape our environments.

Photographs: Thomas Adank